
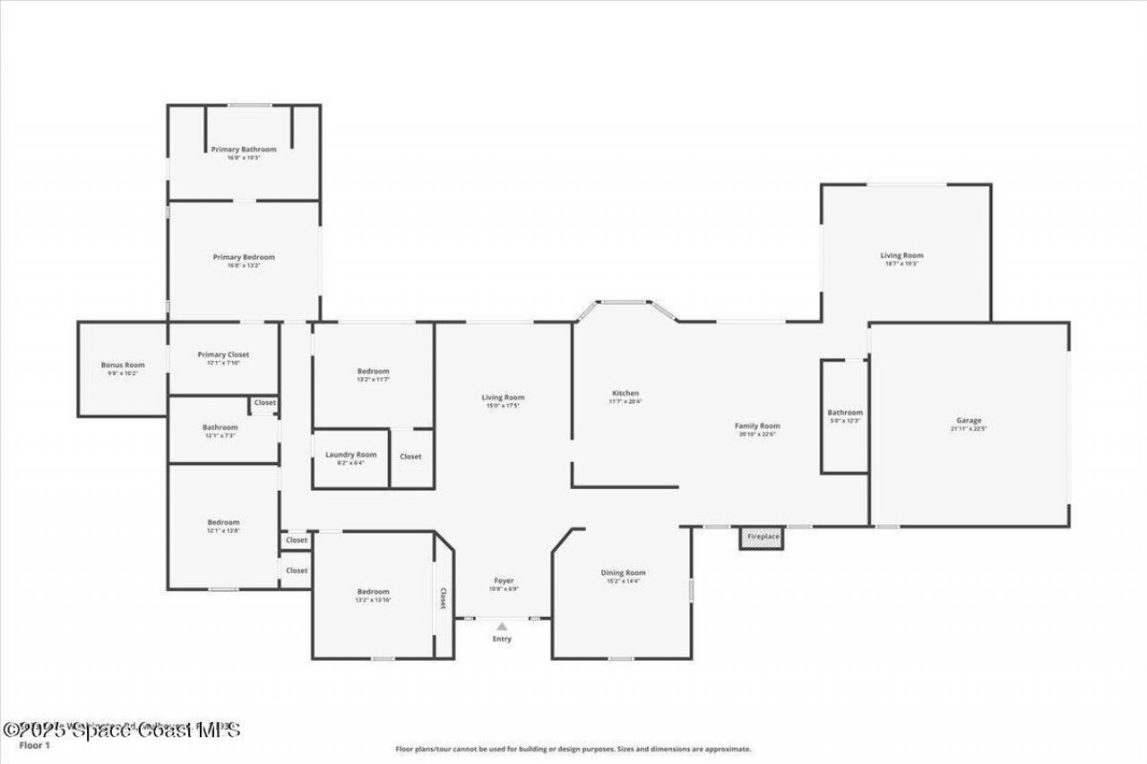
**ASSUMABLE 4.25% LOAN** Private Equestrian Oasis in the Heart of Melbourne - 5.5 Acres of Luxury LivingWelcome to your dream retreat -- a fully renovated 4-bedroom, 3-bathroom estate set on 5.5 secluded acres in the heart of Melbourne, Florida. This rare property offers a harmonious blend of tranquil country living with immediate access to upscale shopping, fine dining, and Floridas stunning coastline.From the moment you arrive beneath the newly constructed porte-cochere, youll sense the crafts...**ASSUMABLE 4.25% LOAN** Private Equestrian Oasis in the Heart of Melbourne - 5.5 Acres of Luxury LivingWelcome to your dream retreat -- a fully renovated 4-bedroom, 3-bathroom estate set on 5.5 secluded acres in the heart of Melbourne, Florida. This rare property offers a harmonious blend of tranquil country living with immediate access to upscale shopping, fine dining, and Floridas stunning coastline.From the moment you arrive beneath the newly constructed porte-cochere, youll sense the craftsmanship and care that define this estate. Step inside to soaring vaulted ceilings with exposed beams, rich textures, and an inviting gas fireplace that anchors the open-concept living space. At the heart of the home is a chefs dream kitchen, equipped with premium Viking appliances, a gas range, and custom finishes -- all overlooking your private backyard sanctuary. Just outside, a newly built resort-style pool with dual sun shelves invites you to unwind or entertain in pure Florida
View MoreCourtesy of
Agency Name: Cervera Real Estate
Agency Phone: 305-374-3434
Agent Name: Joy Kairalla
Presented by
Agent Name: Nick Catrambone
Agent Phone: 267.326.6586
Agency Title: The Keyes Company
Send an email with a link to
5685 Lake Washington Road , Melbourne, FL 32934.
Email 5685 Lake Washington Road , Melbourne, FL 32934
Thank you for your inquiry! As a thank you, we have a Special Mortgage Offer for You.
We would like to provide you a free, no-obligation, home loan pre-approval review.