
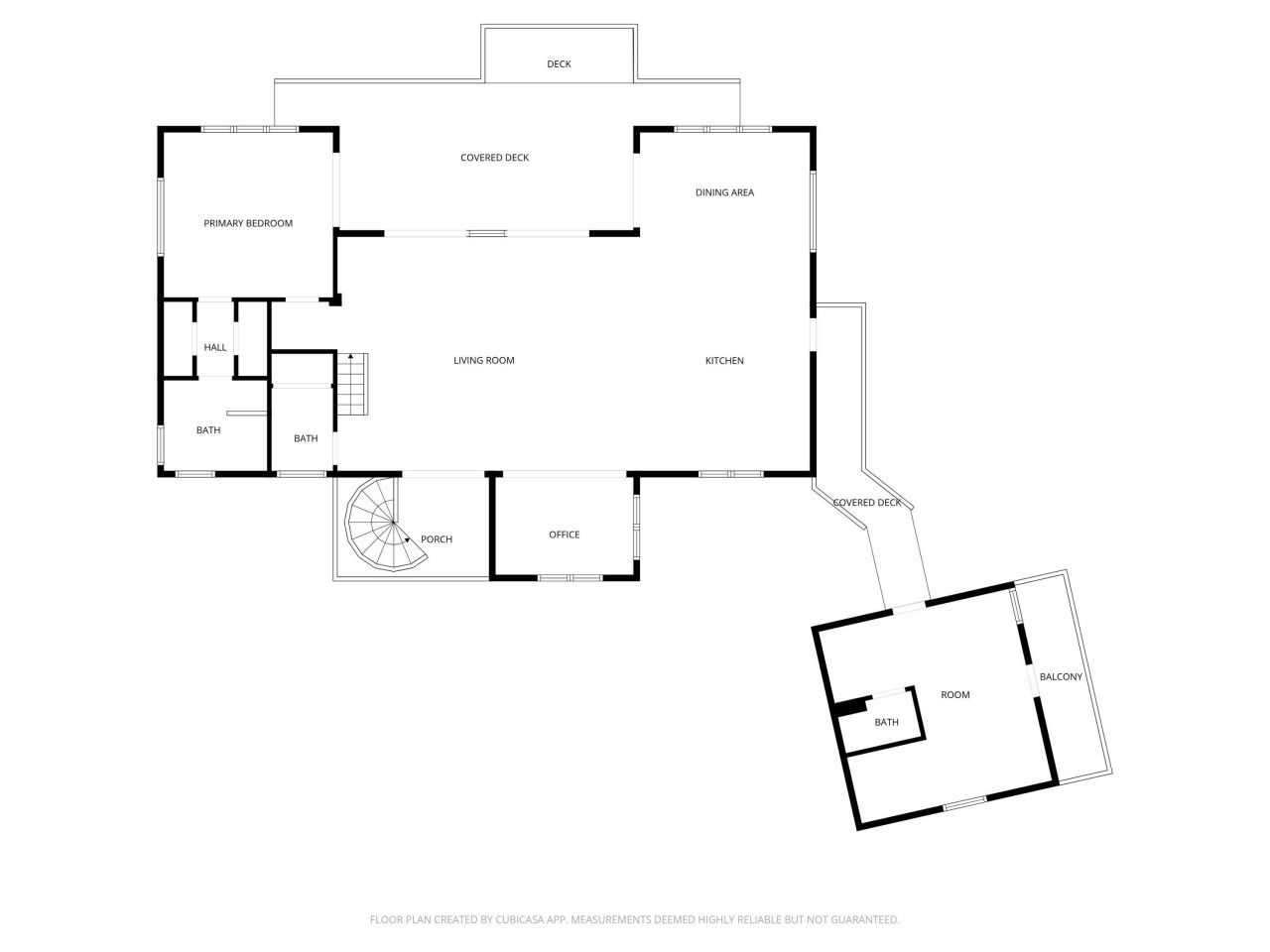
There are homes in the Florida Keys... and then there are legacy properties. Conceived and built by internationally recognized Keys architect Glenn Gray as his personal residence, 493 Coral Avenue is a rare architectural offering positioned on a premier point lot with open Gulf frontage and protected canal dockage. With water on two sides and panoramic sunrise-to-sunset views, the setting is nothing short of extraordinary. The 13,400 square foot parcel unfolds into a curated tropical landscape...There are homes in the Florida Keys... and then there are legacy properties. Conceived and built by internationally recognized Keys architect Glenn Gray as his personal residence, 493 Coral Avenue is a rare architectural offering positioned on a premier point lot with open Gulf frontage and protected canal dockage. With water on two sides and panoramic sunrise-to-sunset views, the setting is nothing short of extraordinary. The 13,400 square foot parcel unfolds into a curated tropical landscape featuring a private sandy beach, heated and chilled Gulf-front pool, putting green, tiki hut lounge, and expansive waterfront decking. This is resort-level living--without leaving home. For the boating enthusiast over 80' of dockage with two boat lifts (20,000 lb and 7,000 lb) provide secure dockage, while immediate access to the Gulf and Atlantic via Niles Channel ensures effortless days on the water. Inside, the South Pacific-inspired design showcases soaring vaulted ceilings, exposed architectural details and walls of glass framing the water. The Hansen & Bringle-designed kitchen blends custom craftsmanship with refined coastal style. The main-level primary suite offers privacy and comfort, while a loft-style guest bedroom and attached guest cottage provide flexible accommodations. Impact doors and windows, elevator access, and thoughtful renovations preserve the integrity of the original design while elevating modern comfort. Offered Turn-Key. This is not simply a Gulf Front Pool Home. It is a one-of-a-kind Keys estate.
View MoreCourtesy of
Agency Name: Coldwell Banker Schmitt Lower Keys (KW)
Agency Phone: (305) 872-3050
Agent Name: Lisa H Ferringo
Presented by
Agent Name: Nick Catrambone
Agent Phone: 267.326.6586
Agency Title: The Keyes Company
Send an email with a link to
493 Coral Avenue, Ramrod, FL 33042.
Email 493 Coral Avenue, Ramrod, FL 33042
Thank you for your inquiry! As a thank you, we have a Special Mortgage Offer for You.
We would like to provide you a free, no-obligation, home loan pre-approval review.